Espace propriétaire
fr

Votre recherche

Nouveauté
Trois-Îlets (97229)

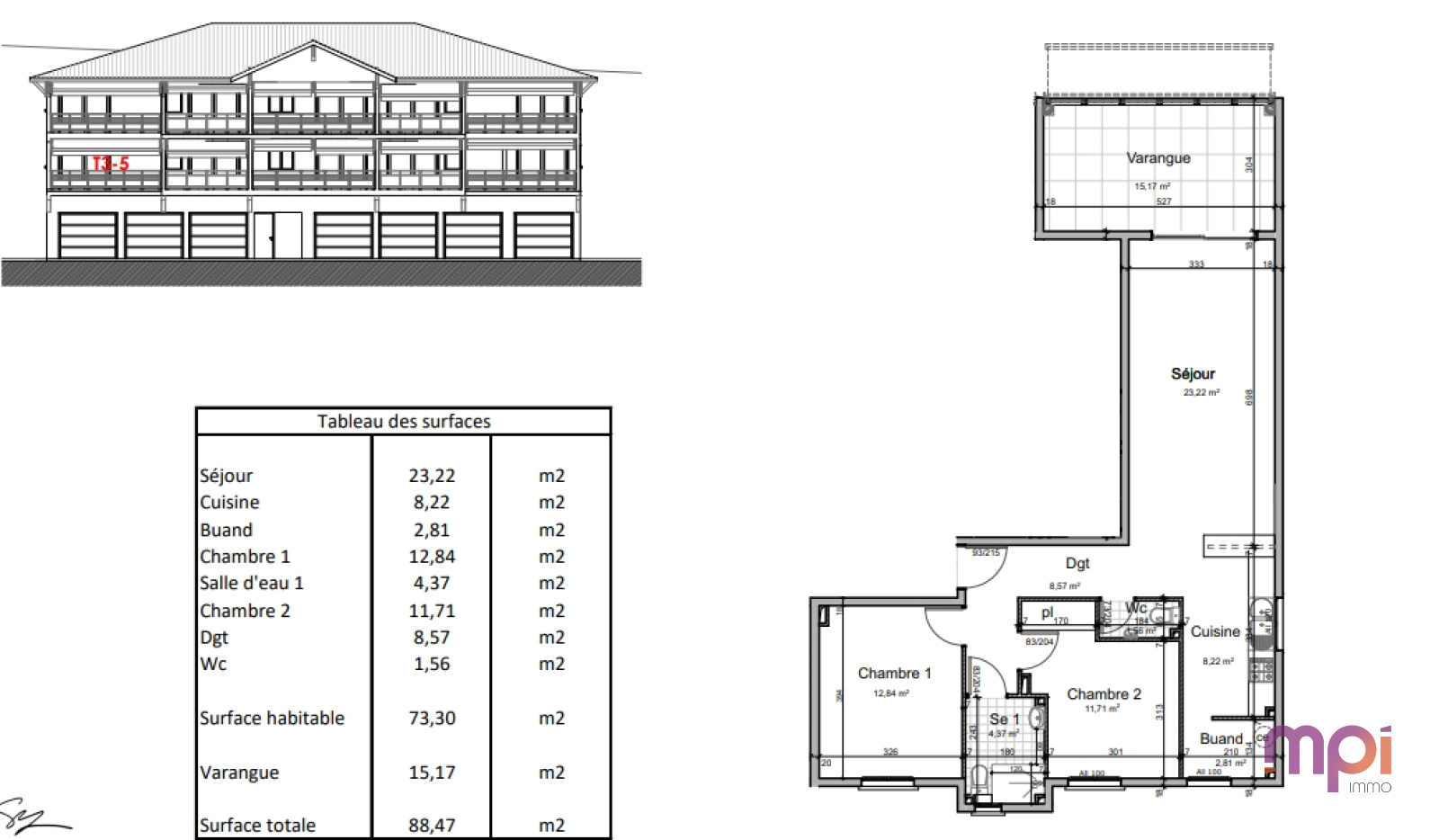
3 pièces - 88,47 m²

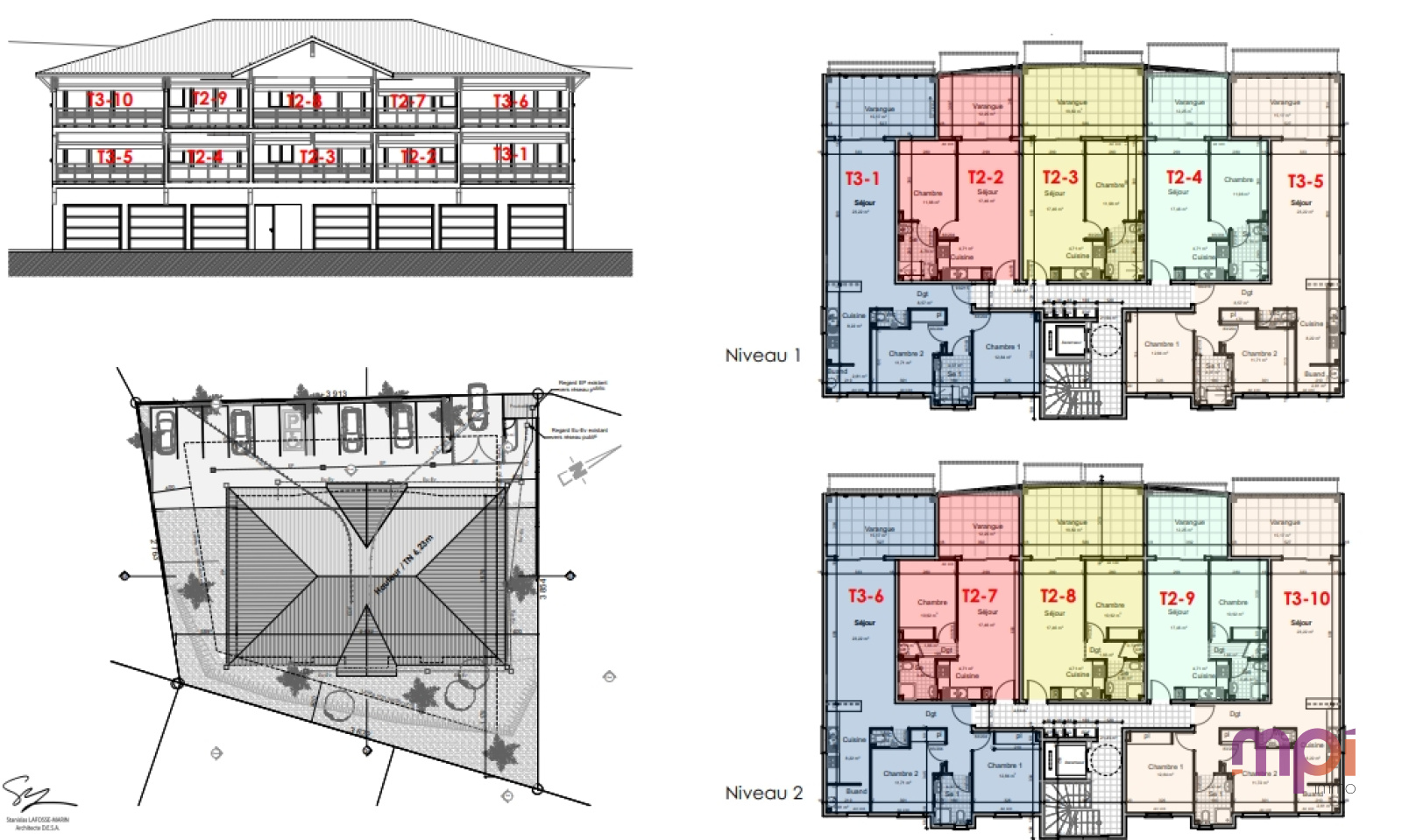
T3 TROIS-ILETS - Nouvelle résidence proche plage - PINEL OUTRE-MER

378 000 €
Ref : T306
Découvrir le bien

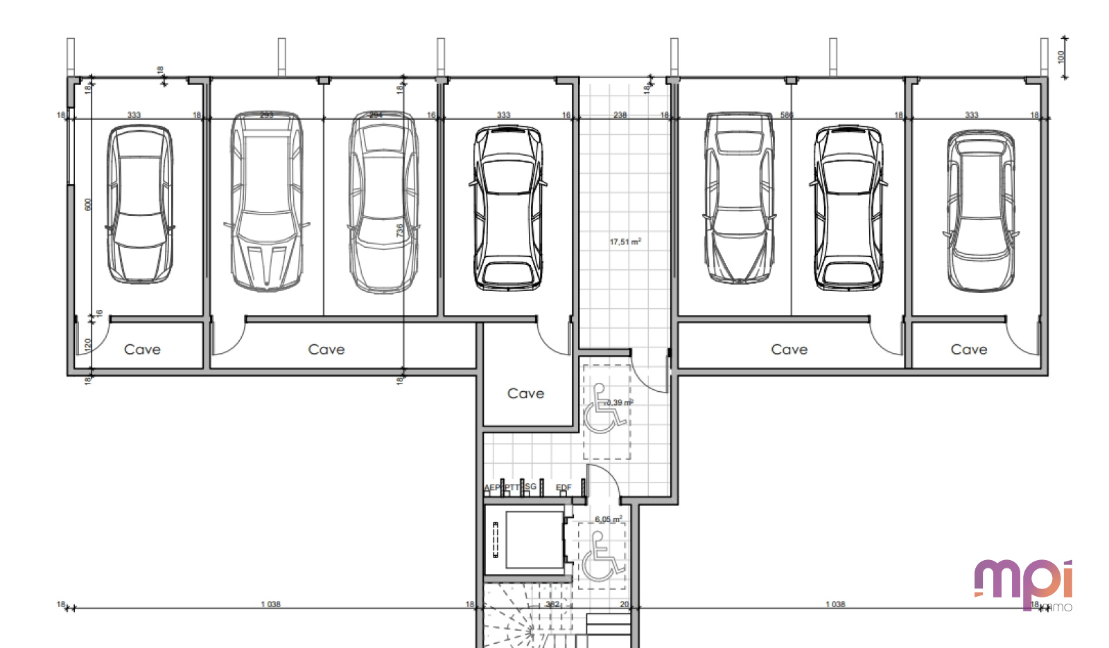
Contactez vite SYLVAIN GARDIN au 06 96 07 36 48. Les travaux sont en cours (1er niveau terminé) pour cette belle résidence de standing de 10 appartements avec vue mer sur la baie de Fort-de-France située à L'Anse à L'Ane, à moins de 500 mètres de la plage, des commerces et des navettes maritimes. Il s'agit d'un T3 situé au 2ème et dernier étage avec ascenseur composé d'un séjour avec cuisine américaine aménagée et semi-équipée, d'une terrasse couverte, de deux chambres climatisées, d'une salle d'eau, d'un WC séparé, dégagement, pour une surface totale de 88.47m² (73.30m² carrez). 2 places de stationnement couvertes sont rattachées au lot.

Début des travaux juillet 2024, livraison fin 2025. Eligible au crédit d'impôt. Belles prestations pour une résidence de standing sur deux étages.

Prix honoraires d'agence inclus 378 000€ - Honoraires d'agence à la charge du vendeur -

Vidéo et vue aérienne du projet sur demande à sylvain.gardin@mpi-immobilier.com (Agent Commercial 2021 000124 FDF).

Les informations sur les risques auxquels ce bien est exposé sont disponibles sur site: georisques.gouv.fr

TRAD_ZEPHYR_Caracteristique TRAD_ZEPHYR_Valeurs
Code postal 97229
Surface loi Carrez (m²) 73 m²
Nombre de chambre(s) 2
Nombre de pièces 3
Nombre de niveaux 1
Ascenseur OUI
TRAD_ZEPHYR_Caracteristique TRAD_ZEPHYR_Valeurs
Nb de salle d'eau 1
Nombre de parking 2
Quartier ANSE A L ANE
TRAD_ZEPHYR_Caracteristique TRAD_ZEPHYR_Valeurs
Prix de vente honoraires TTC inclus 378 000 €
DPE GES
  • Commerces et santé
  • Loisirs
  • Ecoles
  • Transports
  • Pratique
Contacter pour ce bien
L'agence
Téléphone 06 96 90 09 39
Adresse
ZA Taupinière 97223 Le Diamant

* Champ obligatoire

Les informations recueillies sur ce formulaire sont enregistrées dans un fichier informatisé par La Boite Immo agissant comme Sous-traitant du traitement pour la gestion de la clientèle/prospects de l'Agence / du Réseau qui reste Responsable du Traitement de vos Données personnelles. La base légale du traitement repose sur l'intérêt légitime de l'Agence / du Réseau. Elles sont conservées jusqu'à demande de suppression et sont destinées à l'Agence / au Réseau. Conformément à la loi « informatique et libertés », vous disposez des droits d’accès, de rectification, d’effacement, d’opposition, de limitation et de portabilité de vos données. Vous pouvez retirer votre consentement à tout moment en contactant directement l’Agence / Le Réseau. Consultez le site https://cnil.fr/fr pour plus d’informations sur vos droits. Si vous estimez, après avoir contacté l'Agence / le Réseau, que vos droits « Informatique et Libertés » ne sont pas respectés, vous pouvez adresser une réclamation à la CNIL. Nous vous informons de l’existence de la liste d'opposition au démarchage téléphonique « Bloctel », sur laquelle vous pouvez vous inscrire ici : https://www.bloctel.gouv.fr Dans le cadre de la protection des Données personnelles, nous vous invitons à ne pas inscrire de Données sensibles dans le champ de saisie libre.
Ce site est protégé par reCAPTCHA, les Politiques de Confidentialité et les Conditions d'Utilisation de Google s'appliquent.

Découvrir nos outils